Facts and Features
One Acre Home For Sale
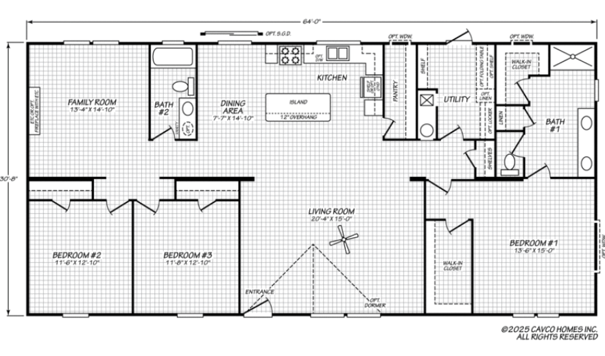
30 x 64
2 Living Room
1,962 Sq Ft
Monthly Payment – $2,256
3 Bedroom 2 Bathroom
This manufactured home is built to the federal (HUD) building code for manufactured housing.
to save your favourite homes and more
Don't have an account? Sign up
Enter your email address and we will send you a link to change your password.
Already have an account? Log in
You'll use it to sign in, and we'll use it to contact you.