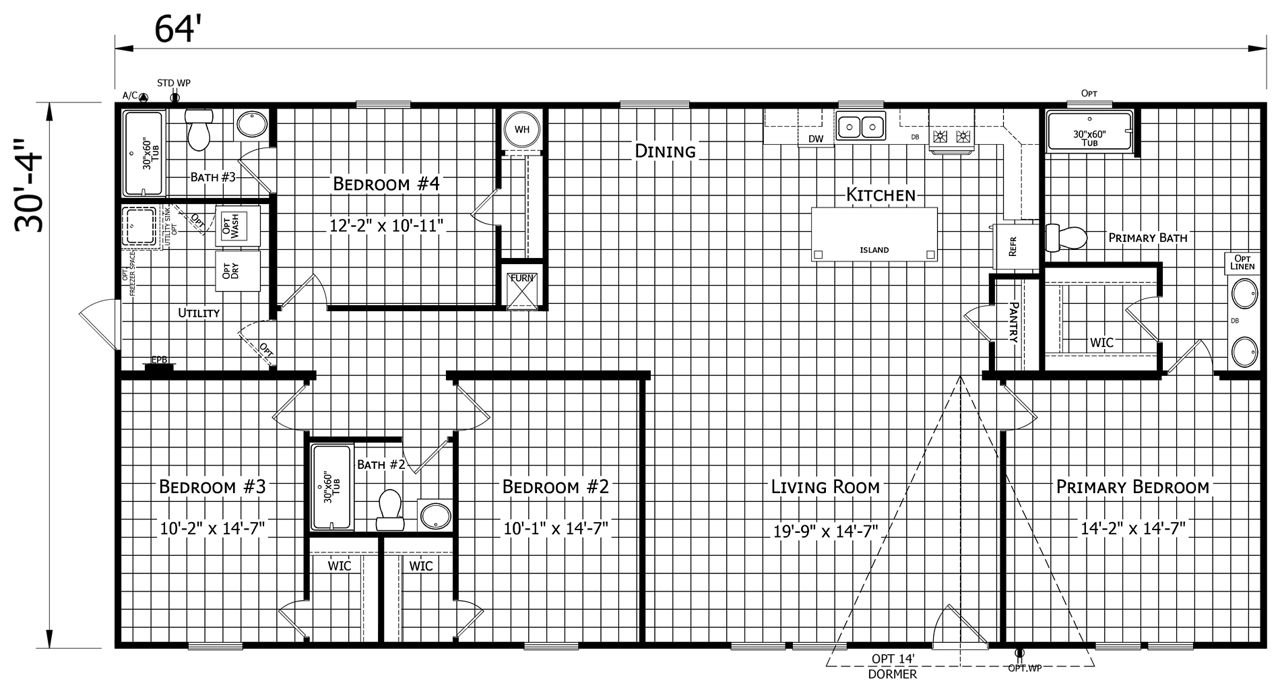
Fresno

Fresno

279,900

  • Home Features
  • Kitchen Island
  • 1941 Square Feet

 

This manufactured home is built to the federal (HUD) building code for manufactured housing.

Reset password

Enter your email address and we will send you a link to change your password.

Get started with your account

to save your favourite homes and more

Sign up with email

Get started with your account

to save your favourite homes and more

By clicking the «SIGN UP» button you agree to the Terms of Use and Privacy Policy
Powered by Estatik